+5
Les Orres (05200)

Appartement 1 pièce(s) 23.18 m²

1
Balcon
Ascenseur
79 500 €
Réf V10000214

Rare à la vente !


Situé à seulement quelques mètres du centre de la station 1650, tout en bénéficiant d’un environnement calme, découvrez ce charmant studio à environ 300 mètres des remontées mécaniques et des commerces.

Implanté en étage élevé d’une résidence confortable, cet appartement profite d’une exposition plein sud offrant une belle luminosité ainsi qu’une jolie vue dégagée sur les environs.

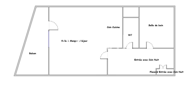
Fonctionnel et optimisé pour accueillir jusqu’à 4 personnes, il se compose :

  • d’une entrée avec rangements,
  • d’un coin montagne avec lits superposés,
  • d’une salle de bains,
  • de WC indépendants,
  • d’un séjour lumineux avec canapé convertible,
  • d’un espace cuisine pratique.

Vous profiterez également d’un balcon ensoleillé, idéal pour apprécier le cadre montagnard.

✔️ Grand parking au pied de la copropriété
✔️ Casier à skis inclus
✔️ Proximité immédiate des commodités

Photos améliorées (luminosité/couleurs) à des fins de présentation, non contractuelles

Bilan énergétique

Diagnostics énergetiques
A propos de ce bien Caractéristiques de ce bien
  • Surface 23,18 m²
  • carrez 23,18 m²
  • séjour 13,80 m²
  • 1 salle(s) de bain
  • construit en 1974
  • kitchenette (équipée)
  • Chauffage collectif : radiateur (electrique)
  • 1 niveau(x)
  • 4ème étage
  • 6 étage(s)
  • ascenseur
  • balcon

Info copro

Copropriété
  • Copropriété Oui
  • Nombre de lots 66
  • Quote part annuelle des charges 1 520 €
  • Statut du syndic Pas de procédure en cours

Financier

Informations financières
Prix de vente 79 500 € Les honoraires d'agence seront intégralement à la charge du vendeur
Taxe foncière annuelle 625 €
Taxe d'habitation 602 €

Autour du bien

Découvrez le quartier

Simulation

Calcul des mensualités
* Champs obligatoires
AMK IMMOBILIER Agence