+2
La Penne-sur-Huveaune (13821)

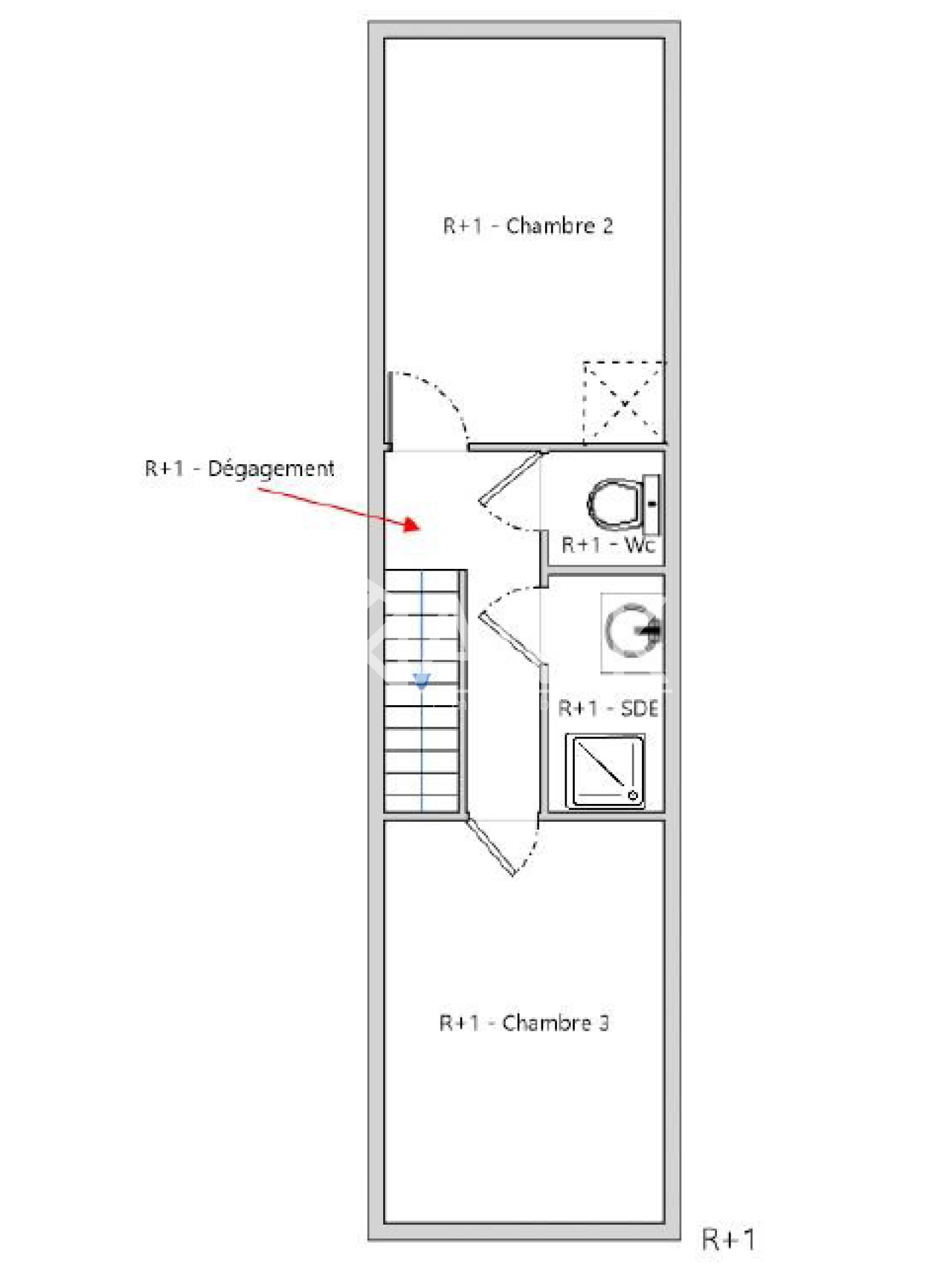
Appartement 2 pièce(s) 1 chambre(s) 52.86 m²

1
Balcon
175 000 €
Réf V40000172
Exclusivité – Appartements T2 – Montée Paya, La Penne-sur-Huveaune Au cœur d’un environnement de village recherché, à proximité immédiate de Marseille, découvrez un bien rare à la vente, situé dans une maison divisée en deux habitations indépendantes, sans copropriété ni charges. - T2 de 52,86 m² – Entrée indépendante Appartement plein de charme, récemment rénové avec soin, bénéficiant d’une entrée privative qui lui confère une véritable atmosphère de maison de village. Vendu loué, avec un locataire sérieux en place depuis plus de 5 ans, offrant une rentabilité immédiate et sécurisée. Possibilité d'acquérir un second appt afin d'être propriétaire de l'ensemble du bâtiment. - T2 de 60,22 m² Appartement spacieux et fonctionnel, également vendu loué, occupé par un locataire en place depuis plus de 15 ans, reconnu pour son sérieux et la bonne tenue du logement. Une stabilité locative rare, très appréciée des investisseurs. Les atouts clés de l’ensemble Deux appartements T2 au sein d’une même maison Aucune charge de copropriété Entrées indépendantes, garantissant intimité et autonomie Locataires fiables et stables sur les deux lots Opportunité idéale pour uninvestissement patrimonial sécurisé Possibilité d’acquérir un seul lot ou l’ensemble immobilier Un bien confidentiel, jamais encore diffusé en ligne, qui séduira aussi bien les investisseurs à la recherche de sécurité locative que les acquéreurs souhaitant conjuguer charme, emplacement et pérennité.

Bilan énergétique

Diagnostics énergetiques
A propos de ce bien Caractéristiques de ce bien
  • Surface 52,86 m²
  • carrez 52,86 m²
  • 1 chambre(s)
  • 1 salle(s) de bain
  • construit en 1949
  • Chauffage individuel : radiateur (electrique)
  • 2 niveau(x)
  • balcon

Financier

Informations financières
Prix de vente honoraires TTC inclus 175 000 €
Taxe foncière annuelle 1 400 €

Autour du bien

Découvrez le quartier

Simulation

Calcul des mensualités
* Champs obligatoires
AMK IMMOBILIER Agence